
neighborhood around a living monument to market life?
The Abattoir Foodmet
A productive heart in need of renewal
Tucked into the dense fabric of Cureghem in South Brussels, the Abattoir is a 19th-century industrial complex designed to encompass every step of the meat industry, from slaughter to sale.
For over a century, it served as a vital node in the city’s food logistics network, connecting producers to markets and neighborhoods to sustenance, creating a daily rhythm that shaped the local identity.


By the late 20th century, however, the area began to deteriorate, much like many others of its kind across the city. While trade, routine, and social gathering continued, the neighborhood became increasingly fragmented. Public services were stretched thin. Economic opportunities for its largely immigrant and working-class population became scarce.
In 2009, Abattoir SA and public partners launched a phased redevelopment strategy to underpin and expand the productive heart of the area, while enhancing its social and economic relevance by incorporating new uses, spaces, and forms of access. ORG was brought in to lead this transformation, working on both the Abattoir 2020 district-wide masterplan and the first phase of that plan: the mixed-use Foodmet market.






Our goal was to reenergize a working site by developing flexible spaces for work, trade, economic exchange, and social interaction. Beyond supporting existing routines, we aimed to lay the foundations for a vibrant new future.


The solution needed to accommodate diverse uses, support ongoing economic activity, and open new opportunities without displacing the communities that depended on the market. More than a mixed-use environment, the Abattoir Foodmet was to become a monument to market life.




Reimagining the future from the ground up
The masterplan set out to develop infrastructure that transcended technical efficiency. Urban warehouses designed around use, routine, and community, rather than mere logistics, introduced an exciting new social dimension.
We carried this concept into the Foodmet project, approaching it as a layered, living intersection of goods, people, and infrastructure.


Creating a new architectural landmark within a dense and sensitive environment requires a solid understanding of the variables at play. The way goods move. Where people gather. Where barriers, blockages, and backlogs form. And equally importantly, the potential centers of reconnection.





With a powerful combination of stakeholder engagement and modern tools, ORG shaped not just a market, but a landmark development, a logistical spine, and an experimental farm. Foodmet would represent the hybrid prototype for the larger transformation to come.


A working monument for market life
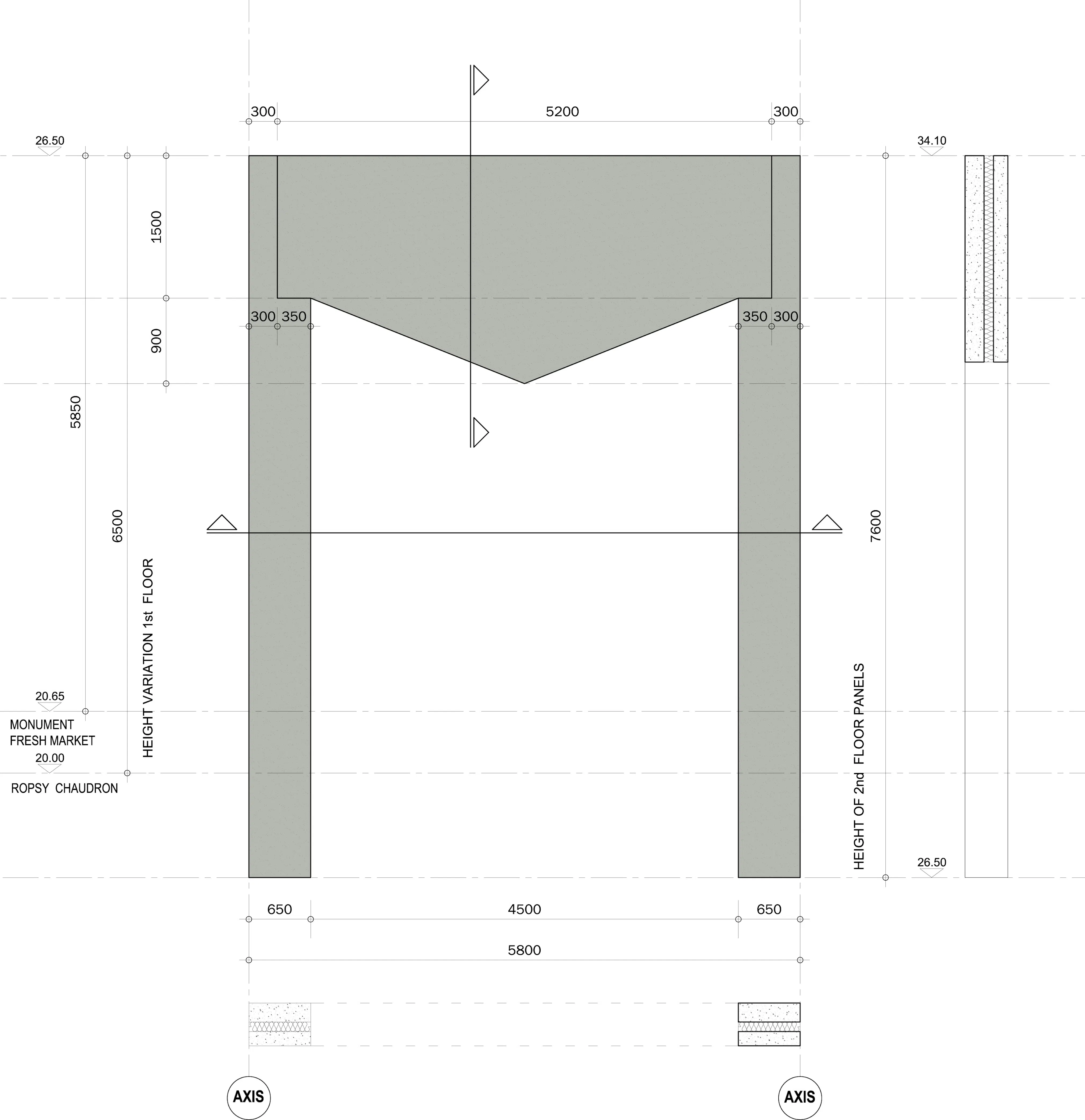
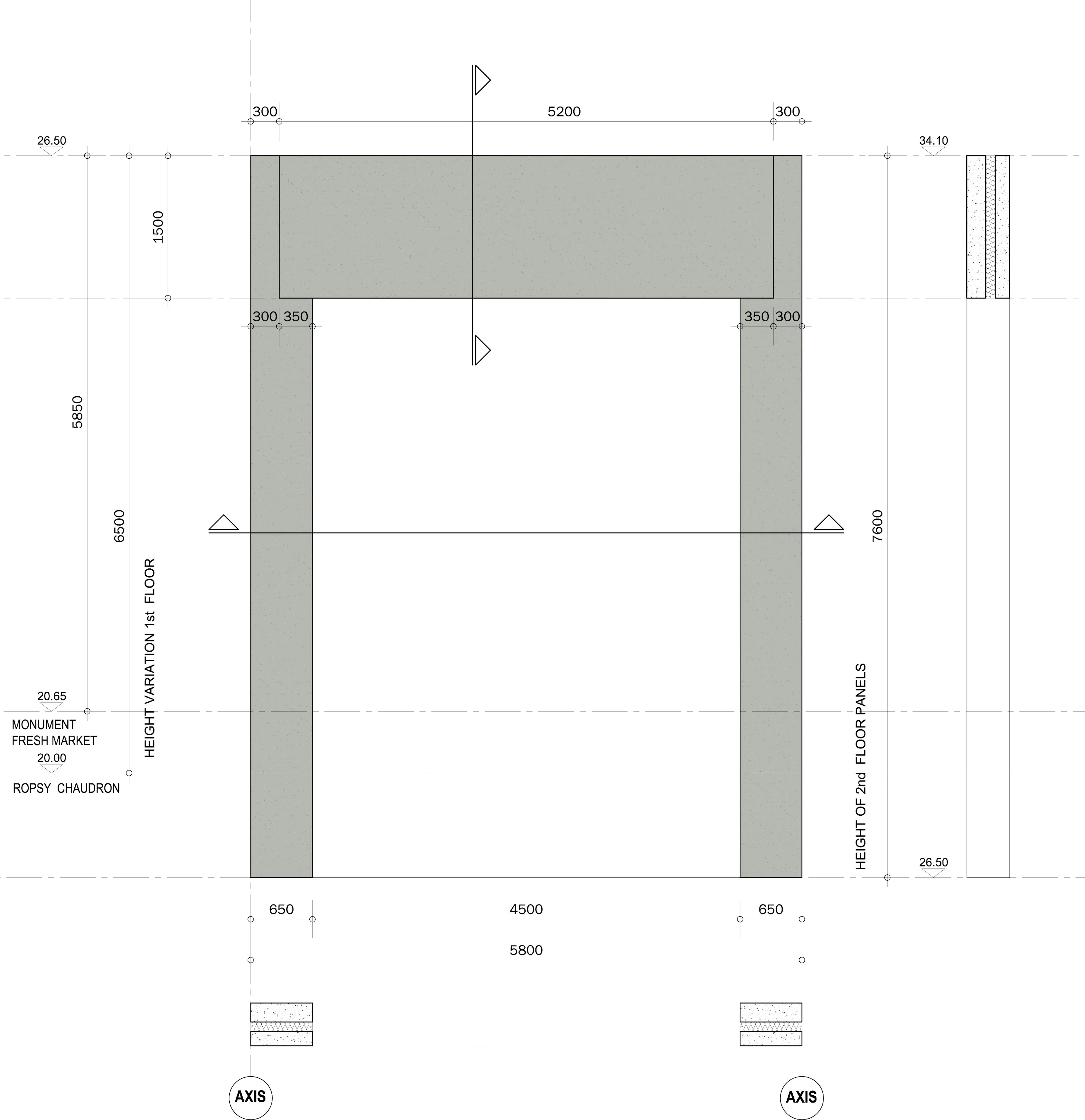
To accommodate the full range of operations from butchers to farmers and cold rooms to greenhouses, ORG developed a consistent architectural system: the Platonic Panels. The name draws inspiration from Plato’s concept of dualistic reality, which distinguishes between an underlying reality and the way we perceive it.
These oversized concrete porticos form a regular grid of large, neutral rooms identical in size. Each space connects seamlessly to the next, enabling the building to be subdivided, expanded, or reprogrammed to meet evolving needs. The system offers spatial clarity without dictating specific uses, allowing it to adapt to changing demands over time.







Inspired by post-and-beam construction, the system functions like a kit of parts: sturdy enough to support heavy infrastructure yet open to flexible use. Large cutouts in the shapes of circles, squares, and triangles lend each panel an abstract yet familiar presence, transforming functional porticos into architectural features that are both essential and adaptable.
The geometric simplicity of the design creates visual rhythm while maintaining structural integrity. The result is a new multifunctional market hall that combines existing heritage with forward-looking initiatives.


Delivered in 2015, the Foodmet consolidates complex logistics into a single modular form while remaining adaptable to shifting uses. The building sustains trade and movement patterns, connecting producers to consumers and serving as a visible hub in the city’s food network. A 4,000 m² rooftop farm grows fresh produce and hosts educational programs, creating over 100 jobs while supplying fresh food stalls below and reinforcing the link between production and place.
As the first step in the Abattoir redevelopment, the Foodmet demonstrates how architecture can operate as both a tool for production and a platform for public life, proposing a model where making and encounter go hand in hand.




